Comencen els tràmits per reurbanitzar els carrers Prat d'en Malagrava i Sant Pere del Pla de l'Arca
Els treballs permetran millorar la pavimentació, els serveis, el clavegueram, les zones verdes i el mobiliari urbà de la zona

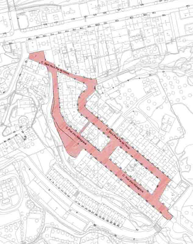
L'Ajuntament de la Jonquera ha posat en marxa el procés per licitar el contracte de serveis per a la redacció del projecte d'urbanització dels carrers Prat d'en Malagrava i Sant Pere del Pla de l'Arca. El projecte ha de permetre fer una ordenació d'una superfície de 5.400 metres quadrats, que inclouen tant carrers com zones verdes. En concret, les obres permetran millorar la pavimentació; les infraestructures i serveis d'aigua, enllumenat públic, telefonia i telecomunicacions; el clavegueram d'aigües plujanes i residuals; l'enjardinament i el reg; el mobiliari urbà i, si cal, establir espais per a zones de pàrquing
El Consistori va treure a licitació el contracte just abans de Nadal, i les empreses tenien fins a finals d'any per presentar-hi les seves propostes. El preu de sortida era de 41.164,20 euros (IVA inclòs), però l'adjudicació es farà a l'empresa que presenti la millor oferta econòmica.
Ara el govern municipal ha d'analitzar les ofertes rebudes i, un cop feta l'adjudicació, l'empresa guanyadora tindrà cinc mesos per redactar el projecte. En un màxim de dos mesos haurà de lliurar l'estudi previ (el projecte bàsic), i després tindrà tres mesos més per presentar el projecte executiu.

No hi ha cap comentari
Comenta aquest article
Informa sobre aquest comentari